Bebauungspläne "Industriegebiet Sasbach-West"
Industriegebiet Sasbach-West
Rechtskraft: 27.10.1989
| Typ | Name | Datum | Größe |
|---|---|---|---|
| Abstandsliste und Immissionsschutz B-Plan Industriegebiet Sasbach-West (5,4 MB) | 16.02.2022 | 5,4 MB | |
| Schriftlicher Teil B-Plan Industriegebiet Sasbach-West (369 KB) | 16.02.2022 | 369 KB | |
| Zeichnerischer Teil B-Plan Industriegebiet Sasbach-West (4,3 MB) | 16.02.2022 | 4,3 MB |
Bebauungsplan "IG Sasbach-West, Erw. Pförrich"
Rechtskraft: 06.12.1991
| Typ | Name | Datum | Größe |
|---|---|---|---|
| Schriftlicher Teil B-Plan IG. Sasbach-West, Erweiterung Pförich (14,4 MB) | 16.02.2022 | 14,4 MB | |
| Zeichnerischer Teil B-Plan IG. Sasbach-West, Erweiterung Pförich (2,4 MB) | 16.02.2022 | 2,4 MB |
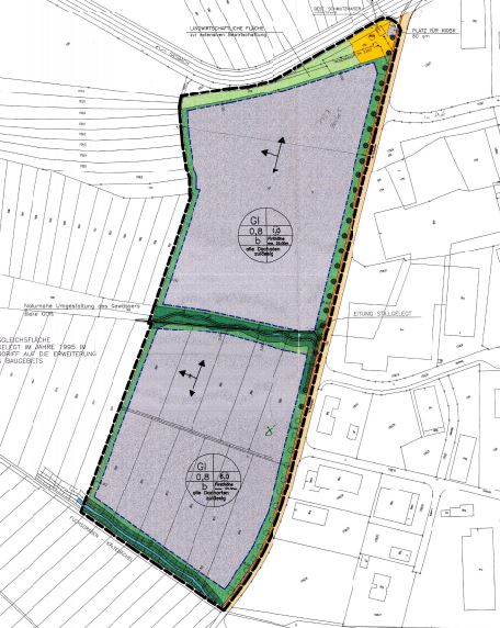
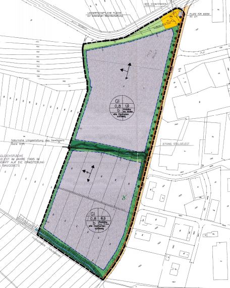
Bebauungsplan "Industriegebiet Sasbach-West, Erweiterung "
Rechtskraft: 02.02.1998
| Typ | Name | Datum | Größe |
|---|---|---|---|
| Schriftlicher Teil B-Plan IG Sasbach-West, Erweiterung (31 MB) | 16.02.2022 | 31 MB | |
| Zeichnerischer Teil B-Plan IG Sasbach-West, Erweiterung (2,4 MB) | 16.02.2022 | 2,4 MB |
