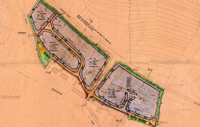
Bebauungsplan "Mättich"
Rechtskraft: 06.08.1993
| Typ | Name | Datum | Größe |
|---|---|---|---|
| Schriftlicher Teil B-Plan Mättich (467 KB) | 16.02.2022 | 467 KB | |
| Zeichnerischer Teil B-Plan Mättich (2,8 MB) | 16.02.2022 | 2,8 MB |

Rechtskraft: 06.08.1993
| Typ | Name | Datum | Größe |
|---|---|---|---|
| Schriftlicher Teil B-Plan Mättich (467 KB) | 16.02.2022 | 467 KB | |
| Zeichnerischer Teil B-Plan Mättich (2,8 MB) | 16.02.2022 | 2,8 MB |